間取り変更を含む戸建ての改修工事が始まりました 八王子市
1階にご両親、2階に自分たち家族で暮らしていた元二世帯住宅。
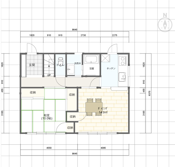
ご両親が亡くなられてからも生活スペースは変わらず、1階部分は物置き部屋の様にして使用されていたそうです。今回はその1階部分を大々的にリフォームすることに……。
工事前の様子
- 外観
- 居間
- 和室
- 浴室
- 洗面所
- キッチン
- トイレ
解体工事
1階は玄関と階段部分を残して全て解体。
今回トイレ以外の水廻りは全て大幅な間取り変更がある為、窓や勝手口を一部つぶして外壁補修も行います。
ユニットバス組立て

組立て直後のユニットバス
ユニットバスの組み立ての前後で、給排水や電気配線工事も行っていきます。
- 新しく洗面台・洗濯機置き場になるスペース
- 床下から見た写真
木下地工事

元和室と居間を合体
今回は、元々お隣同士にあった和室と居間をくっつけてリビングダイニングにしていきます。
ちょうど写真の中央部分にある柱の所に、部屋を仕切る間仕切り壁がありました。壁を取り払い、天井や壁の下地にあたる木部を施工していきます。
- 元浴室と脱衣所を解体
- 仏間にする為木下地を組んでいきます
元々和室の向かい側にあった浴室は今回場所が変更になります。浴室解体後のスペースは仏間にする為木下地を組んでいきます。
外壁補修工事
今回間取り変更に伴い、開口部(窓・勝手口)をいくつかふさいでいきます。
解体した開口部は、下地板を作り防水紙を貼ります。その上からラス網と呼ばれるモルタル用の下地金網を付け、モルタル塗りで仕上げていきます。
- 赤の部分を壁にします
- 解体→下地板→防水紙→ラス網
- モルタル塗り
ボード貼り


木下地を組んだところにボードを貼っていきます。
木工事・建具取付

仏間になる部屋には壁いっぱいに収納を設けました。
ゆくゆくはご主人様の書斎になるかも……。とのことで、吊り収納はデスク代わりとしても使用できる様、高さを73cmに設定。

元々和室と居間を区切っていた壁には構造上抜けない筋交いがあったため、ここはカウンターの様な作りにし、見た目を楽しめるようなデザインにしました。
出入り口の扉はスライドドアへ変更。各所木部の色をそろえて統一感を出しています。

廊下の突き当りは洗面及び脱衣スペースとなっています。
右手前にはこの後洗面化粧台が取付られる予定です。
キッチン組立て

新しいキッチンは奥様のご要望でL型に変更。
シンク側はカウンター式の造りにしたため、洗い物をしているときでもリビングダイニングを一望することができます。キッチンに立ちながらでも、リビングでくつろぐ家族団らんの輪に加われるのは嬉しいポイントのひとつです。
内装仕上げ・器具付け工事
廊下

元々右側手前が和室、その奥が居室、突き当りがキッチンという並びでした。
工事後は右側は全てリビングダイニングキッチン、突き当りが洗面脱衣所への扉になっています。
建具は全て新しいものに変え、木部も含めて色合いをそろえることで空間の統一感を出しています。
リビングダイニングキッチン



テレビ台などを設置する奥の壁と、対面のキッチン側の壁には、それぞれアクセントを入れました。
奥様の遊び心もあり無地の物と、柄物と、それぞれ違ったアクセントを組み合わせていますが、同系色にすることで統一感を持たせています。

この工事に関する詳しい施工事例はこちらから↓↓↓
仏間

5㎡ほどしかない小さな仏間は、ヘリ無の半畳たたみで仕上げました。

天井にはアクセントとして、織り目が交差したアジアンテイストなクロスをチョイス。ほんの少しくすんだカラーのアクセントが入ったことで、明るすぎず落ち着きのある空間を演出できています。
トイレ

トイレは元々タンクレスを使われていましたが、よりスタイリッシュな見た目の物へと交換しました。
リモコンも手元の袖タイプから、壁付けタイプへ変更。
洗面・脱衣所

洗濯機上は使いやすさ考えて可動式の棚を設置。
北側で元々湿気がこもりやすかった空間ということもあり、換気の為脇には小さな小窓を設置しています。また空間自体がそこまで広くない為、お隣の浴室に設置された換気暖房乾燥機を扉を開けた状態で使用すれば脱衣所側までぽかぽか。入浴前に寒い思いをすることもありません。
浴室

今回一番こだわったといっても過言ではない浴室空間。
元々1216サイズだったものを、間取り変更することで1620までサイズアップさせました!
この工事に関する詳しい施工事例はこちらから↓↓↓
- 【投稿日】2021年4月23日
- カテゴリー : ただ今施工中! / ただ今施工中[八王子支店]























